Dringend benötigter bezahlbarer Wohnraum erfordert nach Lösungsansätzen für eine städtische Nachverdichtung zu suchen.
Das Entwurfskonzept für das Gebäudeensemble schlägt eine kompakte Wohnbebauung vor und entwickelt daraus eine reduzierte und spielerische architektonische Formensprache. Insbesondere formuliert der Entwurf Antworten auf die wesentlichen Entwurfskriterien, die eine kosteneffiziente aber gleichzeitig anspruchsvolle architektonische Antwort sucht und daher den bedachten Flächenverbrauch als Gestaltungskriterium verinnerlicht. Die zentralen Raumvorgaben werden wirkungsvoll erfüllt, der Flächenverbrauch minimiert und so kann sich das Gebäudeensemble behutsam stadträumlich in die Nachbarschaft einfügen und leistet so seinen Beitrag zur städtischen und dringend benötigten Nachverdichtung.
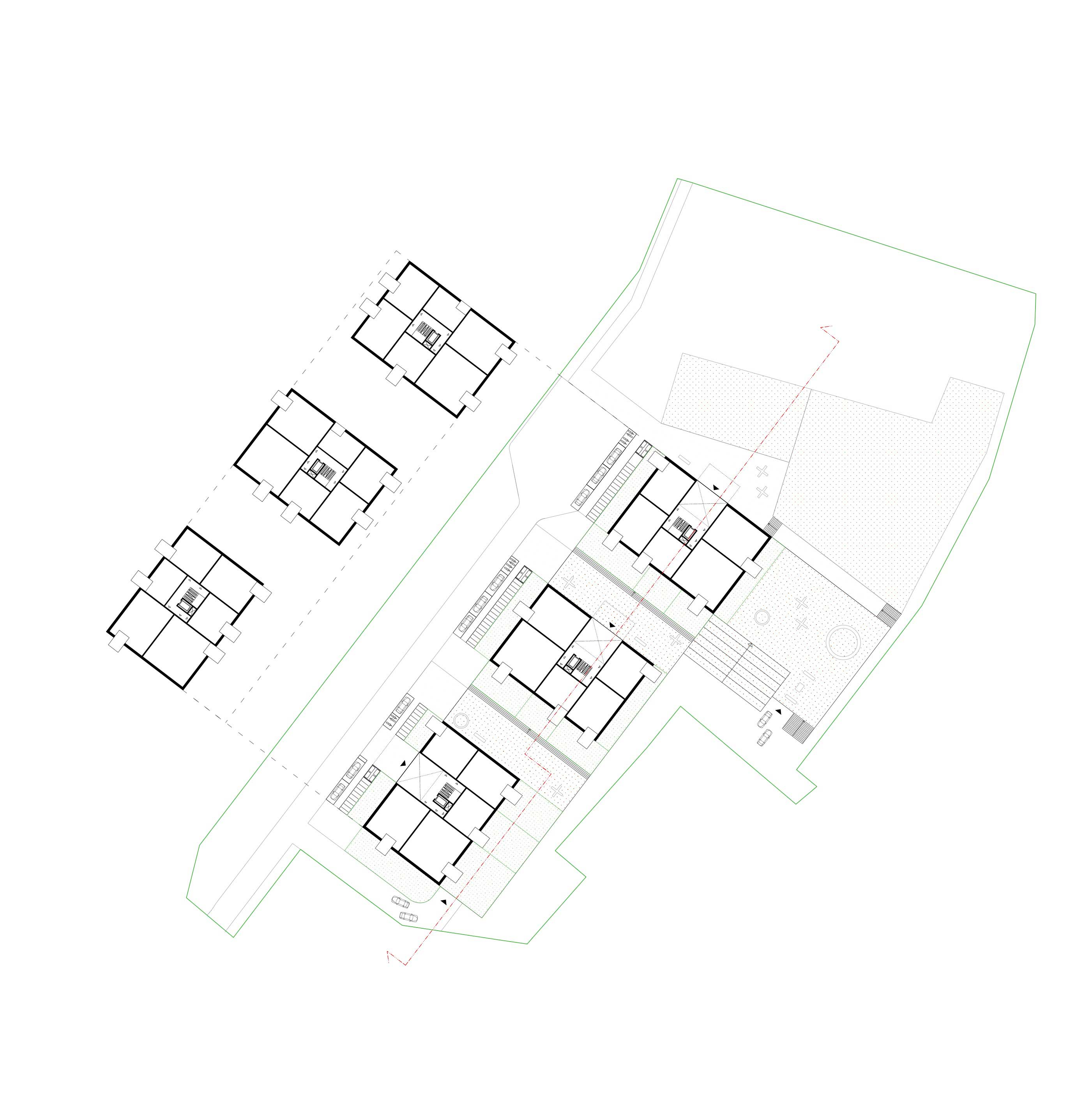
Das Ensemble besteht aus drei gleichen Gebäudekörpern, die sich durch Ihre Anordnung, Orientierung und Höhe leicht unterscheiden und sich so an den Kontext anpassen. Die einheitlichen Regelgrundrisse mit insgesamt 78 Apartments erlauben hingegen die gewünschte Wohnvielfalt, unterstützen jedoch eine kosteneffiziente serielle Planung und Bauausführung. Die Gebäude ruhen auf einer leicht terrassierten Tiefgarage mit insgesamt 116 Stellplätzen, die alle drei Gebäude miteinander verbindet und ebenfalls das kompensierte Parken in einem angeschlossenen Bereich integriert. Die Tiefgarage ist nur teilweise hangseitig eingegraben und vermittelt so zwischen den unterschiedlichen Ebenen der Topographie und erlaubt dadurch eine natürliche Belüftung und ebenerdige Ein- und Ausfahrten zum Nikolausberger Weg und Am Kreuze.




