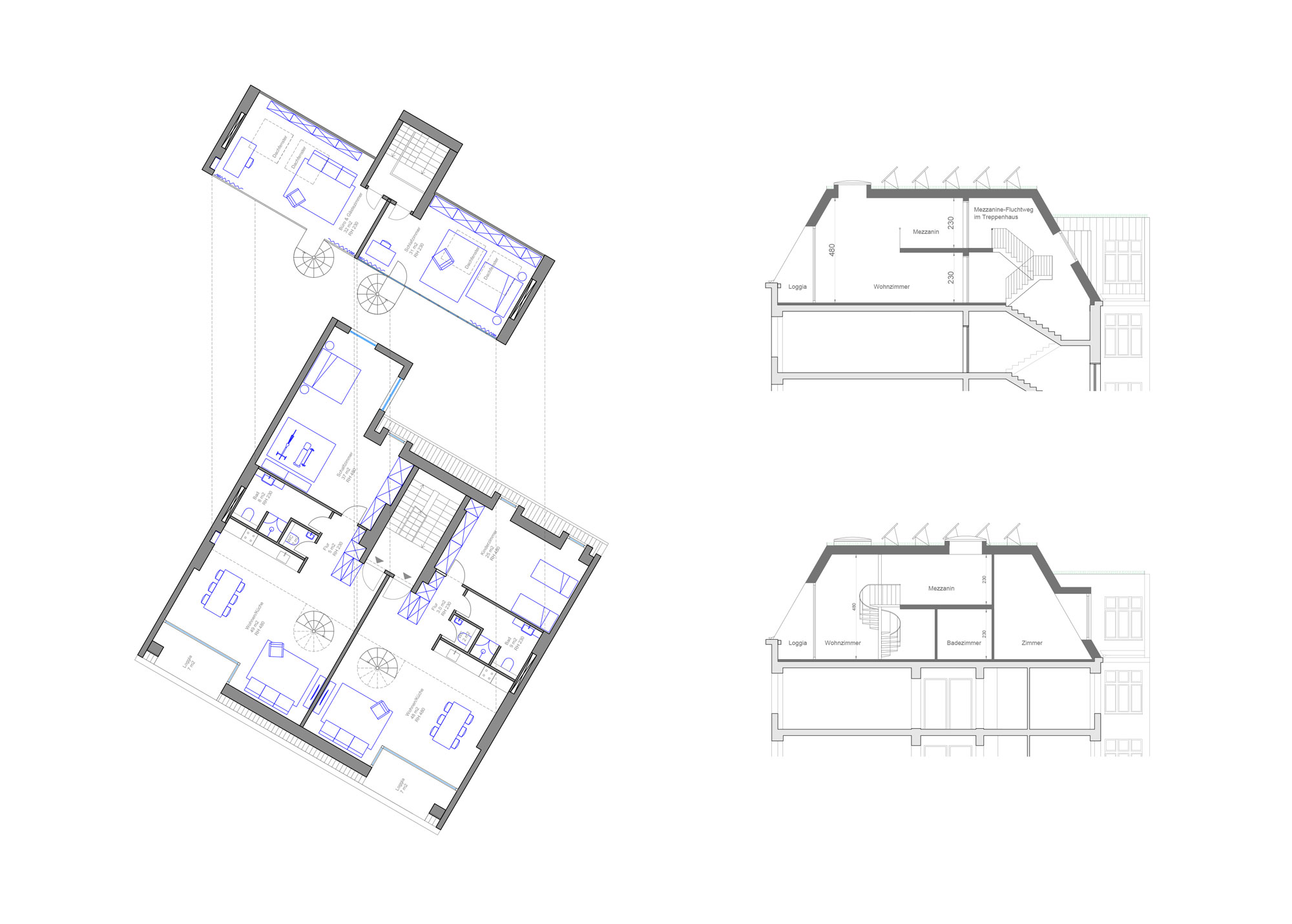
The Loft

| Klient |
|---|
Privat |
| Standort |
Berlin, Deutschland |
| Jahr |
2022 |
| Aufgabe |
Planung und Ausführung |
| Program |
Wohnen |
| Status |
Entwurfsplanung |
| Fläche |
460m2 |

| Klient |
|---|
Privat |
| Standort |
Berlin, Deutschland |
| Jahr |
2022 |
| Aufgabe |
Planung und Ausführung |
| Program |
Wohnen |
| Status |
Entwurfsplanung |
| Fläche |
460m2 |