Das Gebäude orientiert sich straßenseitig zur Panoramastraße und talseitig in die Tiefe des Grundstücks zum offenen Panorama über Bad Wildbad. Die Gebäudeseiten sind weitestgehend zurückhaltend mit Öffnungen versehen, um die nötige Privatsphäre zu der Nachbarbebauung zu gewährleisten, wohingegen die Front- und Rückseiten sich mit großen Panoramafenstern zum Tal bzw. Berg hin öffnen. Die Basis des Hauses bildet eine ausformulierte Terrassenlandschaft, die zwischen den einzelnen Gebäudeteilen und dem recht steil abfallenden Terrain vermittelt.
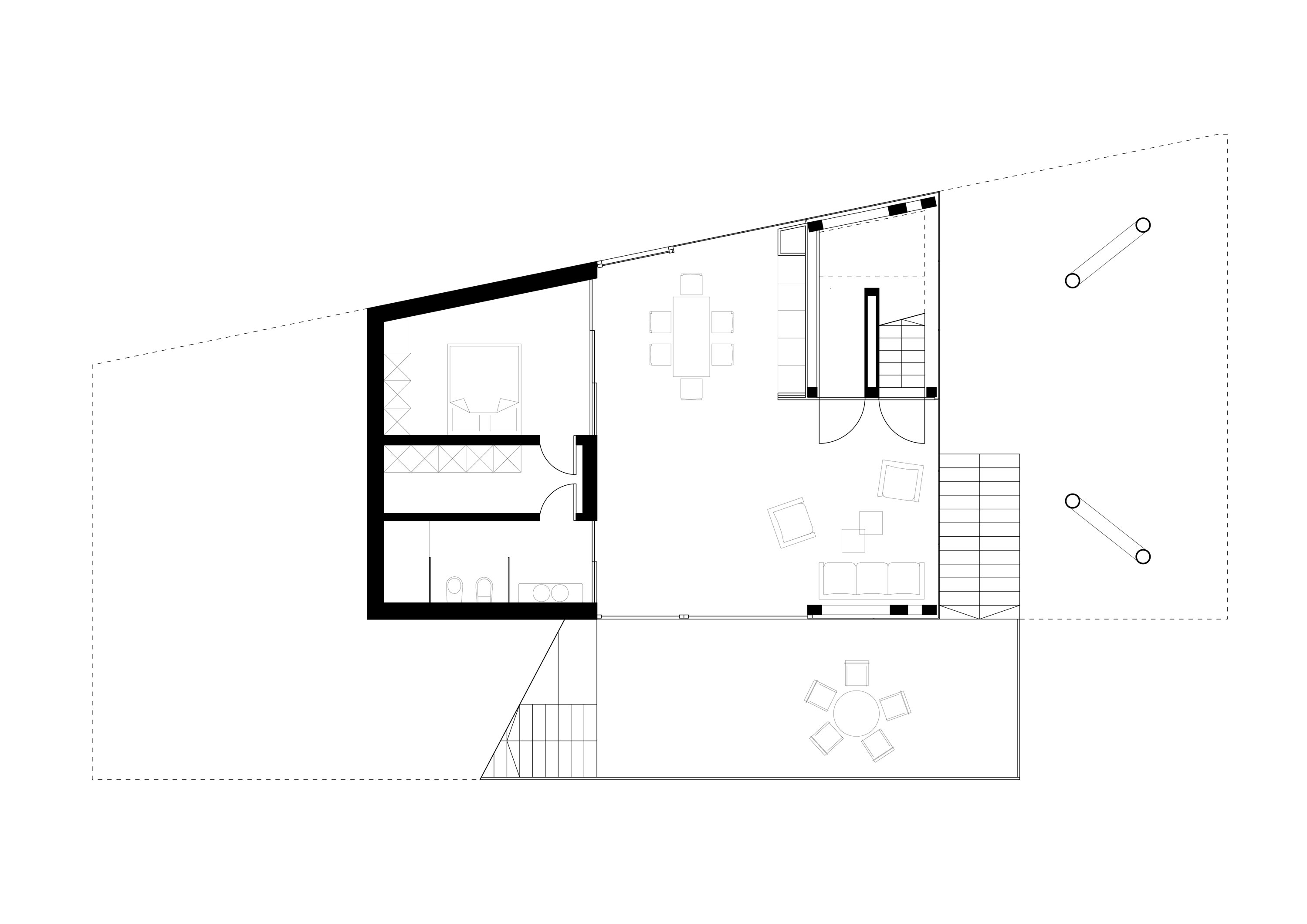
Das Haupthaus und damit der größte Gebäudekörper wird aufgrund der extremen Hanglage straßenseitig ebenerdig ‚von oben’ durch ein Eingangsgebäude und über eine Brücke erschlossen. Der Gebäudekörper des Haupthauses ragt aufgrund der steilen Topographie in das Tal und wird talseitig mit Stützen abgefangen und rückseitig mit den massiven Stützwänden der Terrassen verankert. Der Hauptbaukörper schwebt so über der untersten Ebene, die eine verglaste Einliegerwohnung beherbergt.





