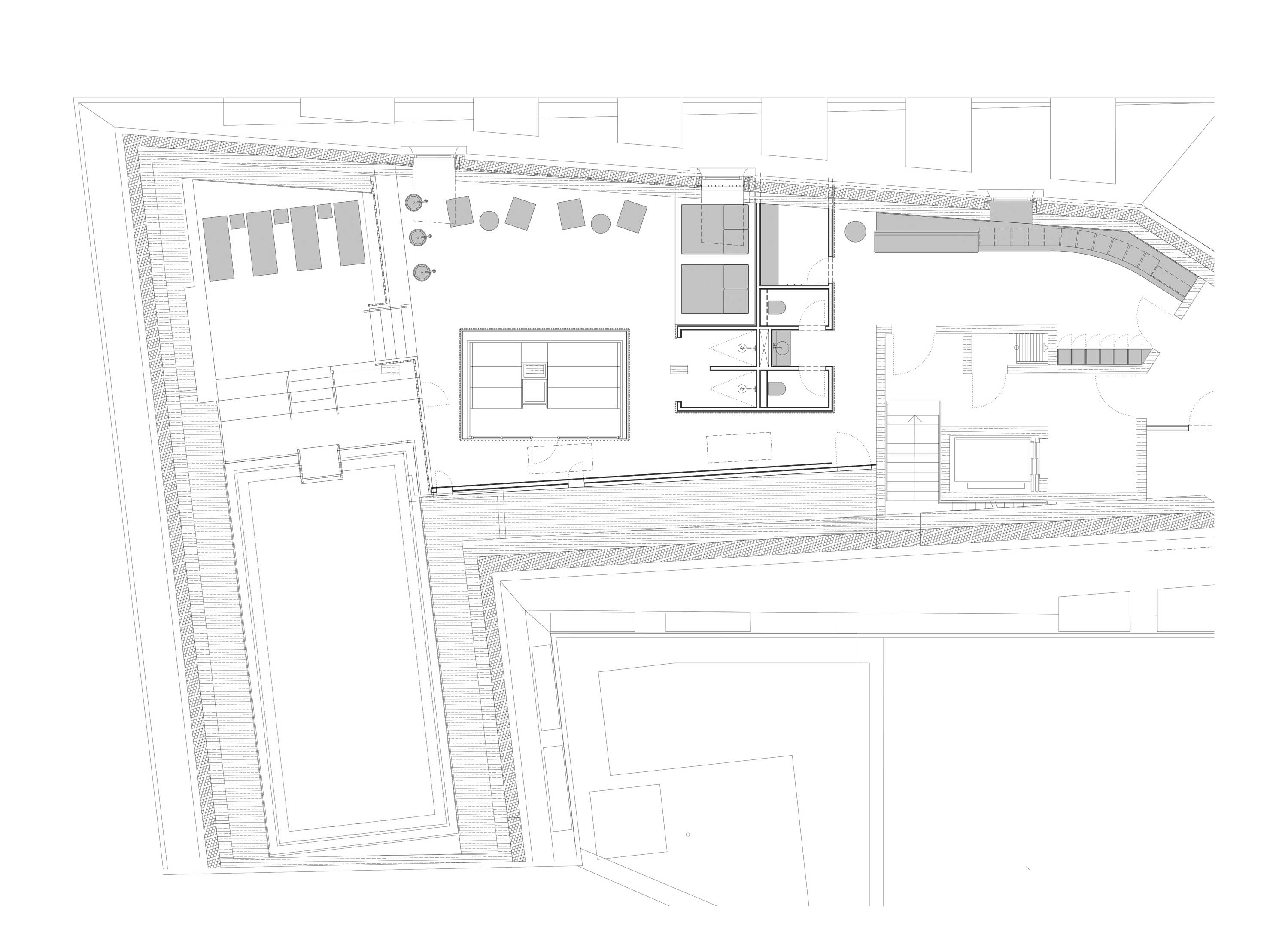
The wellness area belongs to the Hotel Karl August as part of the Augustinerhof and is located on the top floor of the building complex. Its unique location, the infinity pool and a sauna invite to let ones gaze wander over Nuremberg’s old town and to enter a deep state of relaxation. In order to support this situation, we have kept the design concept reduced and mainly used real, natural materials that do not impose themselves and create a feeling of warmth and clarity. For the entrance area, we have developed a long, spatially adapted piece of furni- ture that can be used multifunctionally, e.g. for towels or as a seat. The arrangement of the spatial interventions create a path that forms a dramaturgically staged sequence of spaces, whereby the totality of the space is not immediately visible and thus allows an intimate atmosphere.
The spatial interventions are clad with wooden ribs to create a uniform image. The floor made of light terrazzo is embedded with large stones and is inspired by the feeling of a walk on the beach on pebbles. The infinity pool, which is tiled with mosaic tiles in shades of blue and gray, is adjacent to the large panorama window from which one has a wide view over the roofs of the historic old town of Nuremberg.



